Maison neuve à
Chaniers
(17610) Référence :
AR2301052_1
Prix du projet : Maison avec Terrain
prix 147 700 €
- 3 pièces
- 2 chambres
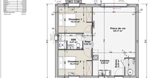
- Surface maison 60 m2
Chaniers : maison de 3 pièces (60 m²) à vendre
Laissez vous charmer par cette maison de 3 pièces de plain-pied de 60 m² et de 500 m² de terrain, idéalement située dans Chaniers (17610).
Conçue de plain-pied, elle propose deux chambres, une cuisine ouverte sur une pièce de vie lumineuse et une salle de bains.
La maison se situe dans un quartier recherché. On trouve l'École Élémentaire Pierre de Ronsard Chaniers à moins de 10 minutes à pied.
Elle est à vendre pour la somme de 147 700 €.
Contactez notre agence RICOME Aurélie : O6.45.28.23.53 pour toute question sur la maison.
Bermax Construction Saintes est là pour vous accompagner dans tous vos projets.
Mentions légales
Terrain proposé par un partenaire foncier selon disponibilités et autorisation de publicité au prix de 48 200 €. Hors droit d'enregistrement et frais de notaire. Maison proposée, avec un contrat de construction de maison individuelle, dans le cadre de la loi du 19/12/1990, au prix de 99 500 € (Hors branchements et raccordements, papiers peints, peintures, revêtement de sol dans les chambres, qui sont chiffrés dans les travaux qui restent à charge du client. Tarif modifiable sans préavis). Étiquette énergie : A. Différents modèles disponibles pour ce terrain. Assurances et garanties du constructeur comprises (RC professionnelle, décennale, dommage ouvrage).Agence Bermax de Saintes (17100)
- Téléphone :
- 05 46 91 55 26
- Adressse :
- 1 impasse de la recouvrance
17100 Saintes, France
