Maison neuve à
Chaniers
(17610) Référence :
PD2312043_2
Prix du projet : Maison avec Terrain
prix 189 589 €
- 4 pièces
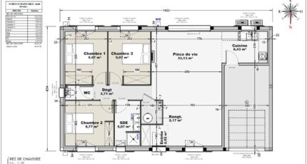
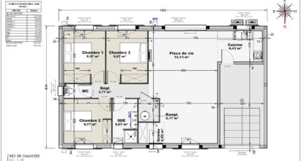
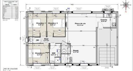
- 3 chambres
- Surface maison 84 m2
Chaniers : maison T4 (3 chambres)
En vente : à 37 km de l'océan Atlantique et à deux pas de Saintes, idéalement située dans Chaniers (17610)
Composée de 3 chambres, séjour/cuisine, salle de bain et garage.
Il est à vendre pour la somme de 189 589 €.
N'hésitez pas à prendre contact avec Pascal DECOU (O6-46-75-16-45) pour toute question sur la maison ou sur les modalités de vente.
Mentions légales
Terrain proposé par un partenaire foncier selon disponibilités et autorisation de publicité au prix de 47 350 €. Hors droit d'enregistrement et frais de notaire. Terrain + Maison proposés au prix de 142 239 € (Hors branchements et raccordements, papiers peints, peintures, revêtement de sol dans les chambres. Tarif modifiable sans préavis). Etiquette énergie : A. Différents modèles disponibles pour ce terrain. Assurances et garanties du constructeur (RC professionnelle, décennale, dommage ouvrage, garantie de remboursement de l'acompte, livraison à prix et délai convenu) : https://www.bermax-constructions.fr/mentions-legales/.Agence Bermax de Saintes (17100)
- Téléphone :
- 05 46 91 55 26
- Adressse :
- 1 impasse de la recouvrance
17100 Saintes, France
