Maison neuve à
Cherves-Richemont
(16370) Référence :
AR2301434_2
Prix du projet : Maison avec Terrain
prix 220 810 €
- 5 pièces
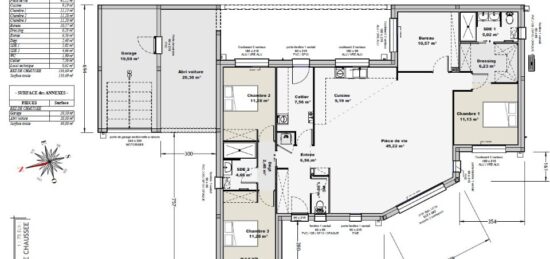
- 4 chambres
- Surface maison 100 m2
Maison de 5 pièces (100 m²) à vendre à Cherves-Richemont
IDÉALEMENT SITUÉE - MAISON 5 PIÈCES NEUVE
À vendre : à deux pas de Cognac, idéalement située dans Cherves-Richemont (16370), nous sommes heureux de vous proposer cette maison de 5 pièces de plain-pied de 100 m² et de 612 m² de terrain. Elle inclut quatre chambres, une cuisine et deux salles de bains.
La maison se situe dans un quartier attractif.
Plusieurs écoles sont implantées à moins de 10 minutes à pied.
Côté transports, il y a la gare Cognac à moins de 10 minutes en voiture ainsi qu'un accès à la nationale N141 à 7 km.
On trouve un terrain de tennis, trois boulangeries, une boucherie charcuterie et une épicerie à quelques minutes à peine.
Elle est à vendre pour la somme de 220 810 €.
Contactez notre agence (RICOME Aurélie : 05-45-95-10-05) pour plus d'informations sur la maison, sur les modalités de vente ou sur les démarches à suivre.
Concrétisez vos projets immobiliers avec Bermax Construction Saint-Yrieix-sur-Charente.
Mentions légales
Terrain proposé par un partenaire foncier selon disponibilités et autorisation de publicité au prix de 39 000 €. Hors droit d'enregistrement et frais de notaire. Maison proposée, avec un contrat de construction de maison individuelle, dans le cadre de la loi du 19/12/1990, au prix de 181 810 € (Hors branchements et raccordements, papiers peints, peintures, revêtement de sol dans les chambres, qui sont chiffrés dans les travaux qui restent à charge du client. Tarif modifiable sans préavis). Étiquette énergie : A. Différents modèles disponibles pour ce terrain. Assurances et garanties du constructeur comprises (RC professionnelle, décennale, dommage ouvrage).Agence Bermax de Saint-Yrieix-sur-Charente (16710)
- Téléphone :
- 05 45 95 10 05
- Adressse :
- 267 Route de Saint Jean d'Angély
16710 Saint-Yrieix-sur-Charente, France
