Maison neuve à
Gond-Pontouvre
(16160) Référence :
JC2470869_2
Prix du projet : Maison avec Terrain
prix 335 000 €
- 6 pièces
- 5 chambres
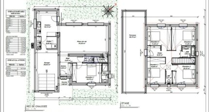
- Surface maison 120 m2
VENTE : maison de 6 pièces (120 m²) à Gond-Pontouvre
EMPLACEMENT PRIVILÉGIÉ - MAISON 6 PIÈCES NEUVE
En vente : située à quelques kilomètres d'Angoulême, découvrez, bénéficiant d'un emplacement privilégié dans Gond-Pontouvre (16160), cette maison de 6 pièces de 120 m² et de 903 m² de terrain. Elle comporte cinq chambres, une cuisine et deux salles de bains.
Cette maison compte 2 niveaux. Elle est neuve.
La maison se situe dans un quartier convoité. Le Collège René Cassin et l'École Primaire du Treuil se trouvent à moins de 10 minutes à pied. Les nationales N10 et N141 sont accessibles à moins de 2 km. On trouve de nombreux commerces dans les environs.
Elle est proposée à l'achat pour 285 000 €.
Contactez Juliette CHEVALLIER pour tout renseignement sur la maison.
Mentions légales
Terrain proposé par un partenaire foncier selon disponibilités et autorisation de publicité au prix de 100 000 €. Hors droit d'enregistrement et frais de notaire. Terrain + Maison proposés au prix de 335 000 € (Hors branchements et raccordements, papiers peints, peintures, revêtement de sol dans les chambres. Tarif modifiable sans préavis). Etiquette énergie : A. Différents modèles disponibles pour ce terrain. Assurances et garanties du constructeur (RC professionnelle, décennale, dommage ouvrage, garantie de remboursement de l'acompte, livraison à prix et délai convenu) : https://www.bermax-constructions.fr/mentions-legales/.Agence Bermax de Saint-Yrieix-sur-Charente (16710)
- Téléphone :
- 05 45 95 10 05
- Adressse :
- 267 Route de Saint Jean d'Angély
16710 Saint-Yrieix-sur-Charente, France
