Maison neuve à
Gond-Pontouvre
(16160) Référence :
JC2470850_3
Prix du projet : Maison avec Terrain
prix 173 300 €
- 2 pièces
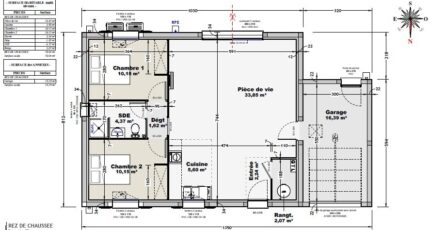
- 2 chambres
- Surface maison 70 m2
Gond-Pontouvre : maison de 2 pièces (70 m²) en vente
EMPLACEMENT PRIVILÉGIÉ - MAISON 2 PIÈCES NEUVE
En vente : située à quelques kilomètres d'Angoulême, laissez vous charmer par cette maison de 2 pièces de plain-pied de 70 m², bénéficiant d'un emplacement d'exception dans Gond-Pontouvre (16160).
Elle compte deux chambres, une cuisine et une salle de bains. La maison est neuve.
Le terrain du bien est de 454 m².
Cette maison est située dans un secteur convoité. Il y a le Collège René Cassin et l'École Primaire du Treuil à moins de 10 minutes à pied. Niveau transports en commun, on trouve deux gares (Angoulême et Ruelle-sur-Touvre) à moins de 10 minutes en voiture. Les nationales N10 et N141 sont accessibles à moins de 2 km. Il y a de nombreux commerces à quelques minutes.
Elle est proposée à l'achat pour 173 300 €.
Contactez Juliette CHEVALLIER pour obtenir de plus amples informations sur la maison ou sur les démarches à suivre.
Mentions légales
Terrain proposé par un partenaire foncier selon disponibilités et autorisation de publicité au prix de 50 000 €. Hors droit d'enregistrement et frais de notaire. Terrain + Maison proposés au prix de 173 300 € (Hors branchements et raccordements, papiers peints, peintures, revêtement de sol dans les chambres. Tarif modifiable sans préavis). Etiquette énergie : A. Différents modèles disponibles pour ce terrain. Assurances et garanties du constructeur (RC professionnelle, décennale, dommage ouvrage, garantie de remboursement de l'acompte, livraison à prix et délai convenu) : https://www.bermax-constructions.fr/mentions-legales/.Agence Bermax de Saint-Yrieix-sur-Charente (16710)
- Téléphone :
- 05 45 95 10 05
- Adressse :
- 267 Route de Saint Jean d'Angély
16710 Saint-Yrieix-sur-Charente, France
