Maison neuve à
Médis
(17600) Référence :
PEH2318670_1
Prix du projet : Maison avec Terrain
prix 230 730 €
- 3 pièces
- 2 chambres
- Surface maison 60 m2
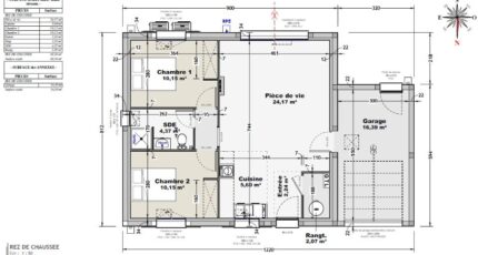
A Médis, située dans un quartier très calme, nous proposons cette maison RE 2020 de plain-pied de 60 m² avec une pièce de vie traversante, 2 chambres, salle d'eau avec wc intégré, garage accolé.
Prenez contact avec Pierre-Emmanuel HÜE (Bermax Construction Vaux-sur-Mer) au 06.25.78.28.20 pour tout renseignement complémentaire.
Mentions légales
Terrain proposé par un partenaire foncier selon disponibilités et autorisation de publicité au prix de 104 000 €. Hors droit d'enregistrement et frais de notaire. Maison proposée, avec un contrat de construction de maison individuelle, dans le cadre de la loi du 19/12/1990, au prix de 126 730 € (Hors branchements et raccordements, papiers peints, peintures, revêtement de sol dans les chambres, qui sont chiffrés dans les travaux qui restent à charge du client. Tarif modifiable sans préavis). Étiquette énergie : A. Différents modèles disponibles pour ce terrain. Assurances et garanties du constructeur comprises (RC professionnelle, décennale, dommage ouvrage).Agence Bermax de Vaux-sur-Mer (17640)
- Téléphone :
- 05 46 38 01 49
- Adressse :
- 19 Avenue Malakoff
17640 Vaux-sur-Mer, France
