Maison neuve à
Médis
(17600) Référence :
NP2343163_3
Prix du projet : Maison avec Terrain
prix 249 400 €
- 4 pièces
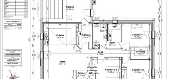
- 3 chambres
- Surface maison 80 m2
Réaliser votre rêve de devenir propriétaire d'une maison 3 chambres avec garage
Une opportunité à ne pas manquer...
À 15 minutes de distance de la belle cité balnéaire de Royan, Médis est une belle commune rurale.
Dans un secteur convoité, ce bien idéalement situé est proche des écoles et des commerces. La plage de Royan se trouve à environ 15 minutes en voiture.
Cette maison comporte trois chambres, une belle pièce de vie lumineuse avec cuisine ouverte ainsi qu'une salle d'eau et un garage.
Le terrain de cette maison s'étend sur 312 m².
Elle est proposée à l'achat pour 249 400 €
Contactez Noemie PERRIN (O6-19-20-14-49) pour tout renseignement sur la propriété. Bermax Construction vous accompagne dans toutes vos démarches et à toutes les étapes de votre projet.
Mentions légales
Terrain proposé par un partenaire foncier selon disponibilités et autorisation de publicité au prix de 89 000 €. Hors droit d'enregistrement et frais de notaire. Maison proposée, avec un contrat de construction de maison individuelle, dans le cadre de la loi du 19/12/1990, au prix de 160 400 € (Hors branchements et raccordements, papiers peints, peintures, revêtement de sol dans les chambres, qui sont chiffrés dans les travaux qui restent à charge du client. Tarif modifiable sans préavis). Étiquette énergie : A. Différents modèles disponibles pour ce terrain. Assurances et garanties du constructeur comprises (RC professionnelle, décennale, dommage ouvrage).Agence Bermax de Vaux-sur-Mer (17640)
- Téléphone :
- 05 46 38 01 49
- Adressse :
- 19 Avenue Malakoff
17640 Vaux-sur-Mer, France
