Maison neuve à
Meschers-sur-Gironde
(17132) Référence :
PEH2318645_1
Prix du projet : Maison avec Terrain
prix 215 900 €
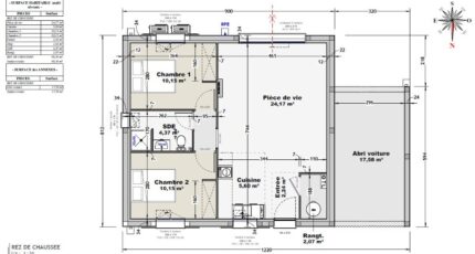
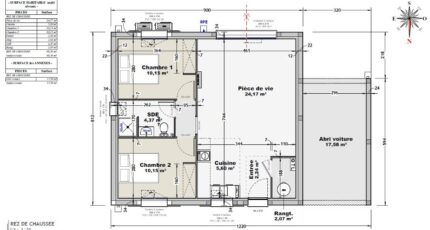
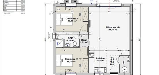
- 2 pièces
- 2 chambres
- Surface maison 60 m2
A Meschers, à 2 km du centre ville et école maternelles et primaires, nous proposons cette maison RE 2020 de plain-pied de 60 m² à construire avec une pièce de vie traversante, 2 chambres, salle d'eau avec wc intégré, carport de 18,65 m²
Prenez contact avec Pierre-Emmanuel HÜE (Bermax Construction Vaux-sur-Mer) au 06.25.78.28.20 pour tout renseignement complémentaire.
Mentions légales
Terrain proposé par un partenaire foncier selon disponibilités et autorisation de publicité au prix de 89 675 €. Hors droit d'enregistrement et frais de notaire. Maison proposée, avec un contrat de construction de maison individuelle, dans le cadre de la loi du 19/12/1990, au prix de 126 225 € (Hors branchements et raccordements, papiers peints, peintures, revêtement de sol dans les chambres, qui sont chiffrés dans les travaux qui restent à charge du client. Tarif modifiable sans préavis). Étiquette énergie : A. Différents modèles disponibles pour ce terrain. Assurances et garanties du constructeur comprises (RC professionnelle, décennale, dommage ouvrage).Agence Bermax de Vaux-sur-Mer (17640)
- Téléphone :
- 05 46 38 01 49
- Adressse :
- 19 Avenue Malakoff
17640 Vaux-sur-Mer, France
