Maison neuve à
Royan
(17200) Référence :
PEH2308543_2
Prix du projet : Maison avec Terrain
prix 331 950 €
- 4 pièces
- 3 chambres
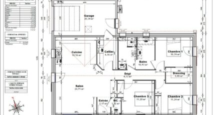
- Surface maison 90 m2
Royan intra-rocade, nous vous proposons cette maison de plain-pied RE 2020 à construire de 97 m², avec entrée, pièce de vie avec cuisine ouverte exposée sud de34m², 3 chambres dont 1 suite parentale, wc salle d'eau, cellier et garage de 20 m².
Intéressé par ce projet, contactez Pierre-Emmanuel HÜE (Bermax Construction Vaux-sur-Mer) au 06.25.78.28.20 pour en discuter avec lui.
Mentions légales
Terrain proposé par un partenaire foncier selon disponibilités et autorisation de publicité au prix de 118 000 €. Hors droit d'enregistrement et frais de notaire. Maison proposée, avec un contrat de construction de maison individuelle, dans le cadre de la loi du 19/12/1990, au prix de 213 950 € (Hors branchements et raccordements, papiers peints, peintures, revêtement de sol dans les chambres, qui sont chiffrés dans les travaux qui restent à charge du client. Tarif modifiable sans préavis). Étiquette énergie : A. Différents modèles disponibles pour ce terrain. Assurances et garanties du constructeur comprises (RC professionnelle, décennale, dommage ouvrage).Agence Bermax de Vaux-sur-Mer (17640)
- Téléphone :
- 05 46 38 01 49
- Adressse :
- 19 Avenue Malakoff
17640 Vaux-sur-Mer, France
