Maison neuve à
Royan
(17200) Référence :
PEH2413429_2
Prix du projet : Maison avec Terrain
prix 208 900 €
- 2 pièces
- 1 chambre
- Surface maison 58 m2
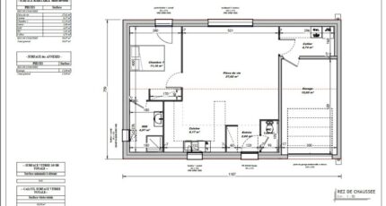
À Meschers-sur-Gironde, dans un environnement recherché entre le centre-bourg et la forêt, laissez-vous séduire par ce projet de maison à construire RE 2020 de 58 m² de plain-pied.
Elle se compose d'une entrée avec placard, d'une pièce de vie lumineuse ouverte sur le jardin par une large baie vitrée, 1 chambre, d'une salle d'eau, de WC séparés ainsi que d'un cellier. Un garage accolé de 18 m² complète ce projet.
Un projet fonctionnel et lumineux, dans un cadre de vie privilégié.
📞 Contactez Pierre-Emmanuel HÜE (Bermax Construction - Vaux-sur-Mer) au O6.25.78.28.20 pour tout renseignement complémentaire.
Mentions légales
Terrain proposé par un partenaire foncier selon disponibilités et autorisation de publicité au prix de 81 600 €. Hors droit d'enregistrement et frais de notaire. Terrain + Maison proposés au prix de 208 900 € (Hors branchements et raccordements, papiers peints, peintures, revêtement de sol dans les chambres. Tarif modifiable sans préavis). Etiquette énergie : A. Différents modèles disponibles pour ce terrain. Assurances et garanties du constructeur (RC professionnelle, décennale, dommage ouvrage, garantie de remboursement de l'acompte, livraison à prix et délai convenu) : https://www.bermax-constructions.fr/mentions-legales/.Agence Bermax de Vaux-sur-Mer (17640)
- Téléphone :
- 05 46 38 01 49
- Adressse :
- 19 Avenue Malakoff
17640 Vaux-sur-Mer, France
