Maison neuve à
Saint-Georges-des-Coteaux
(17810) Référence :
PD2312179_2
Prix du projet : Maison avec Terrain
prix 205 985 €
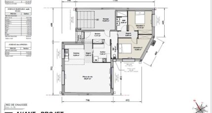
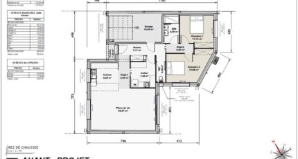
- 3 pièces
- 2 chambres
- Surface maison 80 m2
Saint-Georges-des-Coteaux : maison T3 (2 chambres)
À 31 km de la côte atlantique et à 5 km de Saintes, à vendre idéalement située dans Saint-Georges-des-Coteaux (17810), ayez le coup de coeur pour cette maison de 3 pièces de plain-pied de 80 m² et de 497 m² de terrain. Conçue de plain-pied, elle propose deux chambres, une cuisine et une salle de bains.
Son prix de vente est de 205 985 €.
Prenez contact avec notre agence (Pascal DECOU : O6-46-75-16-45) pour obtenir de plus amples renseignements sur la maison.
Faites de vos projets immobiliers une réalité avec Bermax Construction Saintes.
Mentions légales
Terrain proposé par un partenaire foncier selon disponibilités et autorisation de publicité au prix de 58 900 €. Hors droit d'enregistrement et frais de notaire. Maison proposée, avec un contrat de construction de maison individuelle, dans le cadre de la loi du 19/12/1990, au prix de 147 085 € (Hors branchements et raccordements, papiers peints, peintures, revêtement de sol dans les chambres, qui sont chiffrés dans les travaux qui restent à charge du client. Tarif modifiable sans préavis). Étiquette énergie : A. Différents modèles disponibles pour ce terrain. Assurances et garanties du constructeur comprises (RC professionnelle, décennale, dommage ouvrage).Agence Bermax de Saintes (17100)
- Téléphone :
- 05 46 91 55 26
- Adressse :
- 1 impasse de la recouvrance
17100 Saintes, France
