Maison neuve à
Saint-Just-Luzac
(17320) Référence :
PEH2439408_1
Prix du projet : Maison avec Terrain
prix 248 900 €
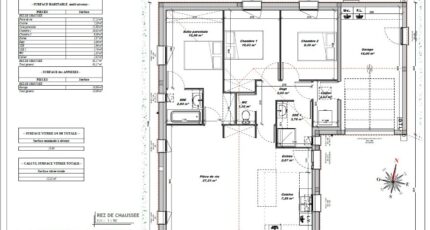
- 4 pièces
- 3 chambres
- Surface maison 80 m2
Maison neuve RE 2020 à Saint-Just-Luzac - Confort moderne et cadre de vie privilégié
À proximité de Marennes, aux portes de l'Île d'Oléron et à 20 minutes de Rochefort, découvrez cette maison individuelle à construire, conforme à la réglementation RE 2020.
D'une surface habitable de 83 m² de plain-pied, elle offre une conception moderne et optimisée :
✔ Belle pièce de vie lumineuse avec triple exposition
✔ 3 chambres, dont une avec salle d'eau privative
✔ Une seconde salle d'eau indépendante
✔ Cellier fonctionnel
✔ WC séparé
✔ Garage attenant de 18 m²
Pour un confort optimal en toute saison, la maison est équipée d'une pompe à chaleur avec plancher chauffant hydraulique, alliant performance énergétique et bien-être au quotidien.
Vous souhaitez personnaliser ce projet ou imaginer une maison sur-mesure adaptée à vos envies ?
📞 Contactez Pierre-Emmanuel HÜE (Bermax Construction Vaux-sur-Mer)
Donnez vie à votre projet dans un environnement agréable entre terre et océan.
Mentions légales
Terrain proposé par un partenaire foncier selon disponibilités et autorisation de publicité au prix de 70 005 €. Hors droit d'enregistrement et frais de notaire. Terrain + Maison proposés au prix de 248 900 € (Hors branchements et raccordements, papiers peints, peintures, revêtement de sol dans les chambres. Tarif modifiable sans préavis). Etiquette énergie : A. Différents modèles disponibles pour ce terrain. Assurances et garanties du constructeur (RC professionnelle, décennale, dommage ouvrage, garantie de remboursement de l'acompte, livraison à prix et délai convenu) : https://www.bermax-constructions.fr/mentions-legales/.Agence Bermax de Vaux-sur-Mer (17640)
- Téléphone :
- 05 46 38 01 49
- Adressse :
- 19 Avenue Malakoff
17640 Vaux-sur-Mer, France
