Maison neuve à
Saint-Palais-sur-Mer
(17420) Référence :
PEH2325894_1
Prix du projet : Maison avec Terrain
prix 384 600 €
- 4 pièces
- 3 chambres
- Surface maison 80 m2
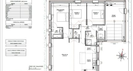
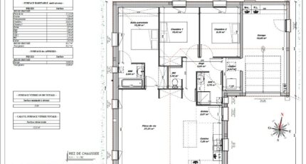
St-Palais-sur-Mer, dans un quartier calme, à 5mn du centre-ville en voiture et 10mn de Royan, nous vous proposons cette maison de plain-pied RE 2020, à construire de 83 m², bénéficiant d'une pièce de vie de 37 m², une chambre avec salle privative, 2 chambres supplémentaire, salle d'eau, wc, cellier, garage de 18 m² avec porte sectionnelle motorisée. Le chauffage est assuré par une pompe à chaleur avec plancher chauffant hydraulique.
Cette maison vous intéresse !!! Contactez alors Pierre-Emmanuel HÜE (Bermax Construction Vaux-sur-Mer) au 06.25.78.28.20
Mentions légales
Terrain proposé par un partenaire foncier selon disponibilités et autorisation de publicité au prix de 180 000 €. Hors droit d'enregistrement et frais de notaire. Maison proposée, avec un contrat de construction de maison individuelle, dans le cadre de la loi du 19/12/1990, au prix de 204 600 € (Hors branchements et raccordements, papiers peints, peintures, revêtement de sol dans les chambres, qui sont chiffrés dans les travaux qui restent à charge du client. Tarif modifiable sans préavis). Étiquette énergie : A. Différents modèles disponibles pour ce terrain. Assurances et garanties du constructeur comprises (RC professionnelle, décennale, dommage ouvrage).Agence Bermax de Vaux-sur-Mer (17640)
- Téléphone :
- 05 46 38 01 49
- Adressse :
- 19 Avenue Malakoff
17640 Vaux-sur-Mer, France
