Maison neuve à
Saint-Palais-sur-Mer
(17420) Référence :
PEH2325894_2
Prix du projet : Maison avec Terrain
prix 449 850 €
- 4 pièces
- 3 chambres
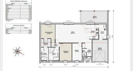
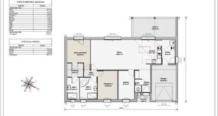
- Surface maison 110 m2
Saint-Palais-sur-Mer : à 3 km du centre-ville, sur un terrain de 590 m², venez découvrir cette maison RE 2020, à construire de 110 m², avec pièce de vie de 45 m²avec cuisine ouverte donnant directement sous auvent, 1 suite parentale avec dresing et salle d'eau, 1 chambre de 12 m², salle d'eau, bureau pouvant se transformer en chambre, wc, cellier age sectionnelle motorisée. Une pompe à chaleur air/eau avec plancher chauffant hydraulique viendra assurer le chauffage de la maison.
Pour tout renseignment complémentaire, prenez contact avec Pierre-Emmanuel HÜE (Bermax Constrcution Vaux-sur-Mer) au 06.25.78.28.20
Mentions légales
Terrain proposé par un partenaire foncier selon disponibilités et autorisation de publicité au prix de 180 000 €. Hors droit d'enregistrement et frais de notaire. Maison proposée, avec un contrat de construction de maison individuelle, dans le cadre de la loi du 19/12/1990, au prix de 269 850 € (Hors branchements et raccordements, papiers peints, peintures, revêtement de sol dans les chambres, qui sont chiffrés dans les travaux qui restent à charge du client. Tarif modifiable sans préavis). Étiquette énergie : A. Différents modèles disponibles pour ce terrain. Assurances et garanties du constructeur comprises (RC professionnelle, décennale, dommage ouvrage).Agence Bermax de Vaux-sur-Mer (17640)
- Téléphone :
- 05 46 38 01 49
- Adressse :
- 19 Avenue Malakoff
17640 Vaux-sur-Mer, France
