Maison neuve à
Saint-Palais-sur-Mer
(17420) Référence :
PEH2358844_1
Prix du projet : Maison avec Terrain
prix 419 100 €
- 5 pièces
- 3 chambres
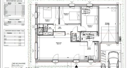
- Surface maison 80 m2
Saint-Palais-sur-Mer : maison plain-pied RE 2020, de 85 m² à construire.
gerie à quelques minutes de la maison.
Elle est dispose d'une entrée directe dans la pièce de vie de 36 m² exposée sud. L'espace cuisine est en lien direct avec le cellier lui -même jouxtant le garage de 18 m².
Cette maison propose également 3 chambres de 10 et 11,40 m² avec placard et une salle d'eau avec fenêtre. Le chauffage est assuré par une pompe à chaleur et un plancher chauffant hydraulique. Peinture, revêtement de sol stratifié dans les chambres, meuble de salle d'eau, accès et raccordements compris.
Pour tout renseignement complémentaire sur cette maison, prenez contact avec Pierre-Emmanuel HÜE (Bermax Construction Vaux-sur-Mer) au 06.25.78.28.20 pour toute information sur la maison ou sur les modalités de vente.
Mentions légales
Terrain proposé par un partenaire foncier selon disponibilités et autorisation de publicité au prix de 217 000 €. Hors droit d'enregistrement et frais de notaire. Terrain + Maison proposés au prix de 202 100 € (Hors branchements et raccordements, papiers peints, peintures, revêtement de sol dans les chambres. Tarif modifiable sans préavis). Etiquette énergie : A. Différents modèles disponibles pour ce terrain. Assurances et garanties du constructeur (RC professionnelle, décennale, dommage ouvrage, garantie de remboursement de l'acompte, livraison à prix et délai convenu) : https://www.bermax-constructions.fr/mentions-legales/.Agence Bermax de Vaux-sur-Mer (17640)
- Téléphone :
- 05 46 38 01 49
- Adressse :
- 19 Avenue Malakoff
17640 Vaux-sur-Mer, France
