Maison neuve à
Saint-Sulpice-de-Cognac
(16370) Référence :
PD2322511_3
Prix du projet : Maison avec Terrain
prix 339 985 €
- 5 pièces
- 3 chambres
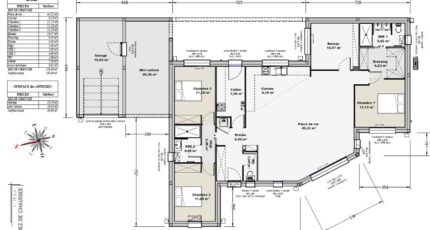
- Surface maison 130 m2
Maison F5 (3 chambres + bureau) à Saint-Sulpice-de-Cognac
À quelques kilomètres de Cognac et Saintes, Bermax Construction Saintes vous propose cette maison de 5 pièces de plain-pied
Elle est composée de trois chambres et un bureau, d'une cuisine et de deux salles de bains.
Elle est proposée à l'achat pour 339 985 €.
Prenez contact avec Pascal DECOU (O6-46-75-16-45) pour tout renseignement sur la maison, sur les modalités de vente ou sur les démarches à suivre.
Faites de vos projets immobiliers une réalité avec Bermax Construction Saintes.
Mentions légales
Terrain proposé par un partenaire foncier selon disponibilités et autorisation de publicité au prix de 49 500 €. Hors droit d'enregistrement et frais de notaire. Maison proposée, avec un contrat de construction de maison individuelle, dans le cadre de la loi du 19/12/1990, au prix de 290 485 € (Hors branchements et raccordements, papiers peints, peintures, revêtement de sol dans les chambres, qui sont chiffrés dans les travaux qui restent à charge du client. Tarif modifiable sans préavis). Étiquette énergie : A. Différents modèles disponibles pour ce terrain. Assurances et garanties du constructeur comprises (RC professionnelle, décennale, dommage ouvrage).Agence Bermax de Saintes (17100)
- Téléphone :
- 05 46 91 55 26
- Adressse :
- 1 impasse de la recouvrance
17100 Saintes, France
