Maison neuve à
Saintes
(17100) Référence :
PD2243195_2
Prix du projet : Maison avec Terrain
prix 319 256 €
- 5 pièces
- 3 chambres
- Surface maison 130 m2
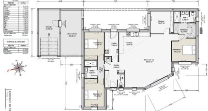
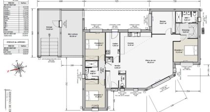
Maison de 5 pièces (3 chambres + bureau) aux portes de Saintes à Fontcouverte
Conçue de plain-pied, elle se divise en trois chambres, une cuisine et deux salles de bains.
Le terrain de la maison est de 1 350 m².
Niveau transports, on trouve la gare Saintes à moins de 10 minutes en voiture. L'autoroute A10 et les nationales N137, N141 et N150 sont accessibles à moins de 3 km.
Elle est proposée à l'achat pour 319 256 €.
Prenez contact avec notre agence (Pascal DECOU : O6-46-75-16-45) pour obtenir de plus amples renseignements sur la maison et sur les démarches à suivre.
Bermax Construction Saintes est là pour vous accompagner dans tous vos projets immobiliers.
Mentions légales
Terrain proposé par un partenaire foncier selon disponibilités et autorisation de publicité au prix de 31 000 €. Hors droit d'enregistrement et frais de notaire. Maison proposée, avec un contrat de construction de maison individuelle, dans le cadre de la loi du 19/12/1990, au prix de 288 256 € (Hors branchements et raccordements, papiers peints, peintures, revêtement de sol dans les chambres, qui sont chiffrés dans les travaux qui restent à charge du client. Tarif modifiable sans préavis). Étiquette énergie : A. Différents modèles disponibles pour ce terrain. Assurances et garanties du constructeur comprises (RC professionnelle, décennale, dommage ouvrage).Agence Bermax de Saintes (17100)
- Téléphone :
- 05 46 91 55 26
- Adressse :
- 1 impasse de la recouvrance
17100 Saintes, France
