Maison neuve à
Saujon
(17600) Référence :
PEH2343118_1
Prix du projet : Maison avec Terrain
prix 298 965 €
- 4 pièces
- 3 chambres
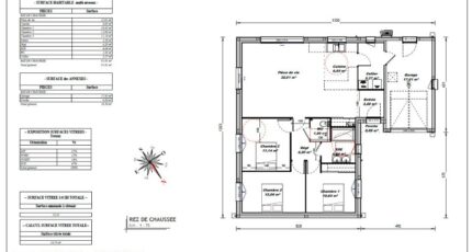
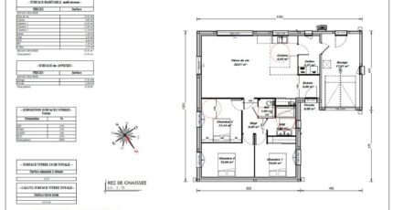
- Surface maison 90 m2
A vendre à 10 km de Royan, nous vous proposons cette maison RE 2020 à constuire, en L de plain-pied, 4 pièces de 90 m² sur une parcelle de 674 m²
Elle compte une pièce de vie 38 m², cuisine ouverte, cellier entre cuisine et garage, 3 chambres, une salle d'eau. Le chauffage est assuré par un plancher chauffant hydraulique
Prenez contact avec Pierre-Emmanuel HÜE (Bermax Construction Vaux-sur-Mer) au 06.25.78.28.20 pour toute information sur cette maison. Bermax Construction Vaux-sur-Mer est là pour vous accompagner dans toutes vos démarches.
Mentions légales
Terrain proposé par un partenaire foncier selon disponibilités et autorisation de publicité au prix de 92 000 €. Hors droit d'enregistrement et frais de notaire. Maison proposée, avec un contrat de construction de maison individuelle, dans le cadre de la loi du 19/12/1990, au prix de 206 965 € (Hors branchements et raccordements, papiers peints, peintures, revêtement de sol dans les chambres, qui sont chiffrés dans les travaux qui restent à charge du client. Tarif modifiable sans préavis). Étiquette énergie : A. Différents modèles disponibles pour ce terrain. Assurances et garanties du constructeur comprises (RC professionnelle, décennale, dommage ouvrage).Agence Bermax de Vaux-sur-Mer (17640)
- Téléphone :
- 05 46 38 01 49
- Adressse :
- 19 Avenue Malakoff
17640 Vaux-sur-Mer, France
