Maison neuve à
Semussac
(17120) Référence :
PEH2439957_1
Prix du projet : Maison avec Terrain
prix 268 900 €
- 4 pièces
- 3 chambres
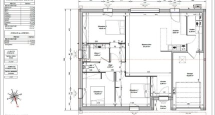
- Surface maison 83 m2
Semussac, proche centre ville, maison à construire de plain-pied RE 2020 de 83 m² avec garage de 16 m². Elle dispose d'une entrée avec espace placard, une pièce de vie de 36 m², une cuisine ouverte avec accès direct sur le jardin par une porte-fenêtre, communication cuisine-cellier-garage, 3 chambres dont une de 15 m², salle de bains, wc séparé. Le chauffage est assurée par une pompe à chaluer et un plancher chauffant hydraulique.
Pour tout renseignement complémentaire sur cette maison, contactez Pierre-Emmanuel HÜE Bermax Construction Vaux-sur-Mer
Mentions légales
Terrain proposé par un partenaire foncier selon disponibilités et autorisation de publicité au prix de 76 000 €. Hors droit d'enregistrement et frais de notaire. Terrain + Maison proposés au prix de 268 900 € (Hors branchements et raccordements, papiers peints, peintures, revêtement de sol dans les chambres. Tarif modifiable sans préavis). Etiquette énergie : A. Différents modèles disponibles pour ce terrain. Assurances et garanties du constructeur (RC professionnelle, décennale, dommage ouvrage, garantie de remboursement de l'acompte, livraison à prix et délai convenu) : https://www.bermax-constructions.fr/mentions-legales/.Agence Bermax de Vaux-sur-Mer (17640)
- Téléphone :
- 05 46 38 01 49
- Adressse :
- 19 Avenue Malakoff
17640 Vaux-sur-Mer, France
