Maison neuve à
Nieulle-sur-Seudre (17600) Référence : PEH2217657_1

Prix du projet : Maison avec Terrain

prix 256 900 €

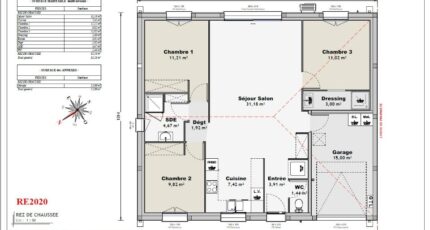
  • 4 pièces
  • 3 chambres
  • Surface maison 80 m2

Nieulle-sur-Seudre : nous proposons cette maison de 4 pièces à construire à 14 km de la côte atlantique et à 30 km de Saintes.
Conçue de plain-pied, elle comporte trois chambres, une cuisine et une salle de bains.
Le terrain de la propriété s'étend sur 537 m².
Il y a l'école Primaire Nieulle-sur-Seudre à moins de 10 minutes à pied, on trouve un tennis, une boulangerie et une supérette à quelques minutes.
Elle est proposée à l'achat pour 256 900 €.
N'hésitez pas à prendre contact avec Pierre-Emmanuel HÜE (Bermax Construction Vaux-sur-Mer) au 06.25.78.28.20 pour obtenir de plus amples renseignements sur cette maison, sur les démarches à suivre ou sur les modalités de vente.

Mentions légales

Terrain proposé par un partenaire foncier selon disponibilités et autorisation de publicité au prix de 56 900 €. Hors droit d'enregistrement et frais de notaire. Maison proposée, avec un contrat de construction de maison individuelle, dans le cadre de la loi du 19/12/1990, au prix de 200 000 € (Hors branchements et raccordements, papiers peints, peintures, revêtement de sol dans les chambres, qui sont chiffrés dans les travaux qui restent à charge du client. Tarif modifiable sans préavis). Étiquette énergie : A. Différents modèles disponibles pour ce terrain. Assurances et garanties du constructeur comprises (RC professionnelle, décennale, dommage ouvrage).

Contactez l'agence de Vaux-sur-Mer

05 46 38 01 49

    * Champs obligatoires

    Vos informations sont traitées par HEXAOM et transmises à un conseiller commercial qui vous contactera afin de répondre à votre demande. Les plans et images présentés sur notre site sont la propriété d’HEXAOM et ne peuvent pas être reproduits sans son accord. Pour retrouver notre politique de protection des données personnelles et exercer vos droits conformément à la « loi informatique et liberté » cliquez-ici.