Plans de maisons

Bermax Construction, constructeur de maisons sur mesure en Charente (16) et Charente-Maritime (17), vous propose une sélection de plans de maisons modernes et personnalisables pour vous aider à concrétiser votre projet.

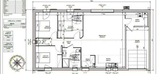
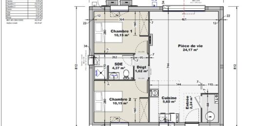
Découvrez nos modèles de maisons individuelles : maisons contemporaines ou traditionnelles, plans en L, en V, en U ou en T, maisons de plain-pied ou à étage, pensés pour s’adapter à votre terrain, à votre budget et à votre mode de vie.

Chaque plan peut être entièrement personnalisé afin de créer une maison sur mesure, conforme aux normes énergétiques actuelles et adaptée aux spécificités de votre secteur (Angoulême, Saintes, Royan et alentours).

Vous avez déjà un terrain ? Consultez nos offres terrain + maison.
Vous recherchez une parcelle à bâtir ? Découvrez nos terrains à vendre.

Contactez-nous pour recevoir une étude personnalisée de votre projet de construction.

Trouver un
plan de maison

93 plans de maison identifiés

Emplacement

Où construire ma maison

Dans le nord de la Nouvelle Aquitaine

Caractéristiques

Caractéristiques du bien

Nombre de chambres

Plusieurs choix possibles

Nombre de pièces

Plusieurs choix possibles

Surface

Surface habitable

m2
m2
Options

Options