Maison neuve à
Saint-Sulpice-de-Cognac
(16370) Référence :
PD2322511_2
Prix du projet : Maison avec Terrain
prix 201 258 €
- 4 pièces
- 3 chambres
- Surface maison 84 m2
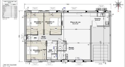
Saint-Sulpice-de-Cognac : maison de 4 pièces (3 chambres)
À quelques kilomètres de Cognac ou Saintes, nous vous présentons cette maison de 4 pièces de plain-pied.
Son intérieur comporte trois chambres, une cuisine et une salle de bains.
Elle est à vendre pour la somme de 201 258 €.
N'hésitez pas à prendre contact avec notre agence (DECOU Pascal : O6-46-75-16-45) pour toute question sur la propriété ou sur les démarches à suivre.
Bermax Construction Saintes vous accompagne à toutes les étapes de l'achat et dans tous vos projets immobiliers.
Mentions légales
Terrain proposé par un partenaire foncier selon disponibilités et autorisation de publicité au prix de 49 500 €. Hors droit d'enregistrement et frais de notaire. Maison proposée, avec un contrat de construction de maison individuelle, dans le cadre de la loi du 19/12/1990, au prix de 151 758 € (Hors branchements et raccordements, papiers peints, peintures, revêtement de sol dans les chambres, qui sont chiffrés dans les travaux qui restent à charge du client. Tarif modifiable sans préavis). Étiquette énergie : A. Différents modèles disponibles pour ce terrain. Assurances et garanties du constructeur comprises (RC professionnelle, décennale, dommage ouvrage).Agence Bermax de Saintes (17100)
- Téléphone :
- 05 46 91 55 26
- Adressse :
- 1 impasse de la recouvrance
17100 Saintes, France
