Maison neuve à
Chaniers
(17610) Référence :
PD2224111_3
Prix du projet : Maison avec Terrain
prix 195 985 €
- 4 pièces
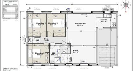
- 3 chambres
- Surface maison 84 m2
VENTE d'une maison de 4 pièces (84 m²) à Chaniers
IDÉALEMENT SITUÉE - MAISON 4 PIÈCES NEUVE
À 37 km de la côte atlantique et à 7 km de Saintes (Entre Le Maine Allain et le quartier Terrefort), Bermax Construction Saintes vous propose cette maison de 4 pièces de plain-pied de 84 m² et de 1 200 m² de terrain à vendre, idéalement située dans Chaniers (17610). Conçue de plain-pied, elle se divise en trois chambres, une cuisine et une salle de bains.
La propriété se situe dans un quartier recherché. L'École Élémentaire Pierre de Ronsard Chaniers et l'École Élémentaire Pierre de Ronsard Chaniers se trouvent à moins de 10 minutes.
Niveau transports, il y a les gares Beillant et Saintes à moins de 10 minutes en voiture. L'autoroute A10 et les nationales N141, N137 et N150 sont accessibles à moins de 10 km. 3On trouve un tennis, un commerce, une boucherie-charcuterie, un bureau de poste et une épicerie à proximité.
Son prix de vente est de 195 985 €.
Contactez notre agence (DECOU Pascal : 06-46-75-16-45) pour tout renseignement sur la maison.
Mentions légales
Terrain proposé par un partenaire foncier selon disponibilités et autorisation de publicité au prix de 55 000 €. Hors droit d'enregistrement et frais de notaire. Maison proposée, avec un contrat de construction de maison individuelle, dans le cadre de la loi du 19/12/1990, au prix de 140 985 € (Hors branchements et raccordements, papiers peints, peintures, revêtement de sol dans les chambres, qui sont chiffrés dans les travaux qui restent à charge du client. Tarif modifiable sans préavis). Étiquette énergie : A. Différents modèles disponibles pour ce terrain. Assurances et garanties du constructeur comprises (RC professionnelle, décennale, dommage ouvrage).Agence Bermax de Saintes (17100)
- Téléphone :
- 05 46 91 55 26
- Adressse :
- 1 impasse de la recouvrance
17100 Saintes, France
